Продам, Дома и коттеджи, 4 комнаты
13 300 000 руб. Продажа
Всего просмотров: 54 Просмотров за сегодня: 1
Дата создания: 2025-08-09 08:18
- Номер объявления:
- 65308
- Тип сделки:
- Продам
- Тип недвижимости:
- Дома и коттеджи
- Адрес:
- Россия, Новосибирский район, Криводановский сельсовет, село Марусино, посёлок Соловьи, улица Морозова, 38
- Цена:
- 13 300 000 руб. Продажа
- Количество комнат:
- 4
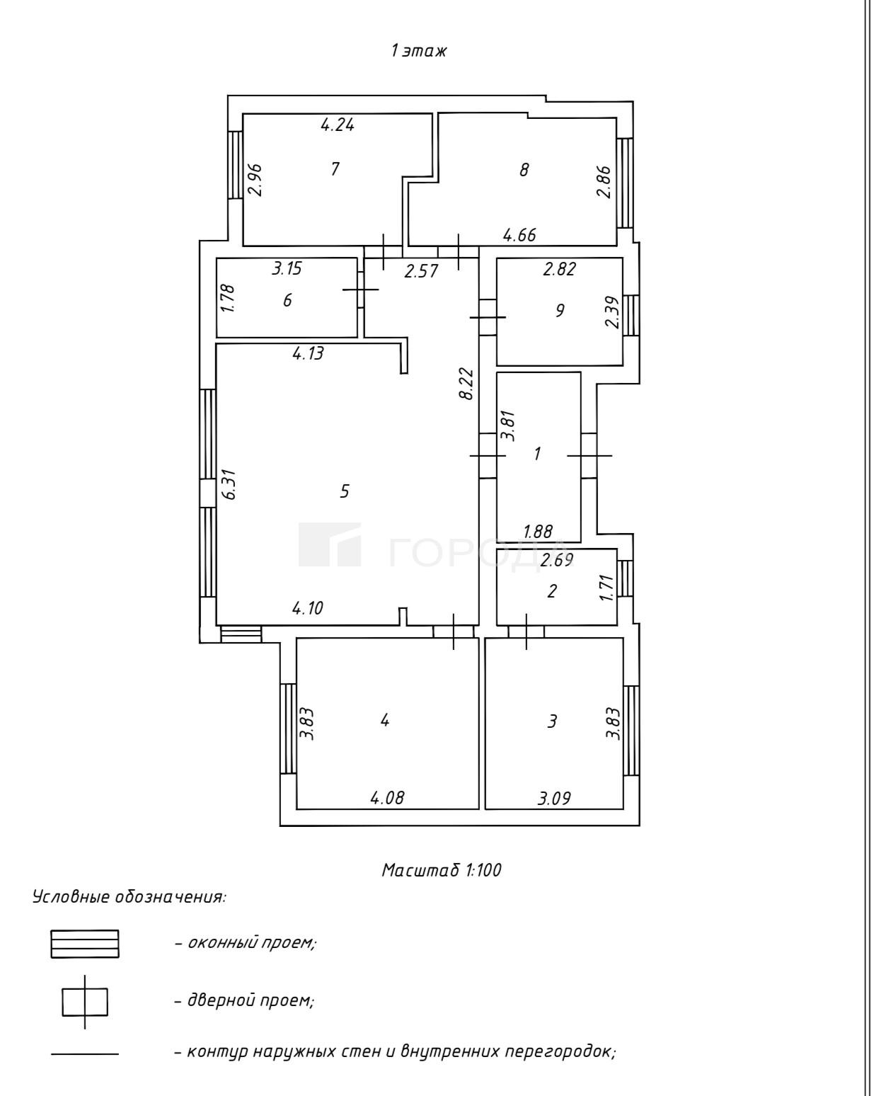
- Этажей всего:
- 1
- Общая площадь:
- 180 м2
- Телефон владельца:
- Показать телефон
- Площадь земельного участка:
- 7.4 соток
Кредитный калькулятор
Ежемесячный платеж: руб.
Переплата: руб.
Похожие объявления









Комментарии
Список комментариев пуст
Оставьте свой комментарий