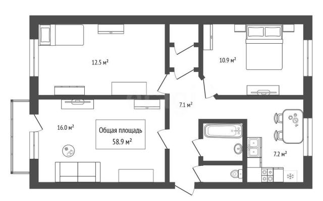
Трехкомнатная квартира на первом этаже пятиэтажного панельного дома в Индустриальном микрорайоне Искитима — практичное решение для семьи с детьми. Общая площадь позволяет комфортно разместиться, а изолированные комнаты дают возможность зонирования пространства. Окна выходят на обе стороны, обеспечивая хорошую естественную освещенность и проветривание. Дом расположен в тихом месте, вдали от шумных дорог, но при этом сохраняет отличную транспортную доступность — автобусная остановка всего в пяти минутах ходьбы.
Инфраструктура микрорайона развита: в трех минутах пешком находится школа, причем путь к ней не требует перехода проезжей части, что особенно важно для безопасности детей. В шаговой доступности расположены детские сады, благоустроенный парк с зонами отдыха для разных возрастов и современная детская площадка за домом. Повседневные потребности легко закрыть за счет сетевых магазинов и пунктов выдачи заказов маркетплейсов.
Квартира требует ремонта, что открывает возможности для индивидуального дизайна. Панельный дом отличается надежностью и хорошей теплоизоляцией, что снижает затраты на отопление в холодный сезон. Первый этаж удобен для семей с маленькими детьми или пожилых людей. Этот вариант сочетает выгодное расположение и продуманную инфраструктуру.
Код пользователя: 183416
Номер в базе: 8924026
Комментарии
Список комментариев пуст
Оставьте свой комментарий